无锡胶大电子材料有限公司
网站首页
关于我们
产品中心
双面胶带
表面保护膜
密封材料/ NVH相关产品
遮蔽胶带
房屋和建设用材料
薄膜产品
FPD /触摸屏相关产品
垫片材料
半导体制造工艺产品
用于电气和电子设备的胶带
柔性印刷电路板
无尘室的除尘产品
氟塑料板和胶带
氟塑料多孔膜
多孔膜/透气材料
功能性热传递系统
包装胶带
住宅行业
家电及电气
电子设备
交通行业
医疗产品
卫生用品
新闻中心
行业新闻
公司新闻
荣誉资质
联系我们
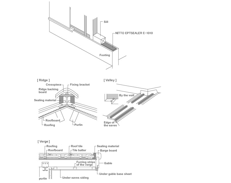
NITTO EPTSEALER EE-1000 Series
防水/密封材料
已有1173人浏览了本产品
上一页:
带状涂料螺纹密封带 P-412
下一页:
没有了…
拨打电话
发送消息